Komfortable City-Wohnung: Modern, klimatisiert & Aufzug in bester Lage von Siegen
Komfortable City-Wohnung: Modern, klimatisiert & Aufzug in bester Lage von Siegen
Willkommen im Centerhome24!
Entdecken Sie ein Wohnkonzept mit modernen Wohnungen zwischen 43 m² und 72 m²!
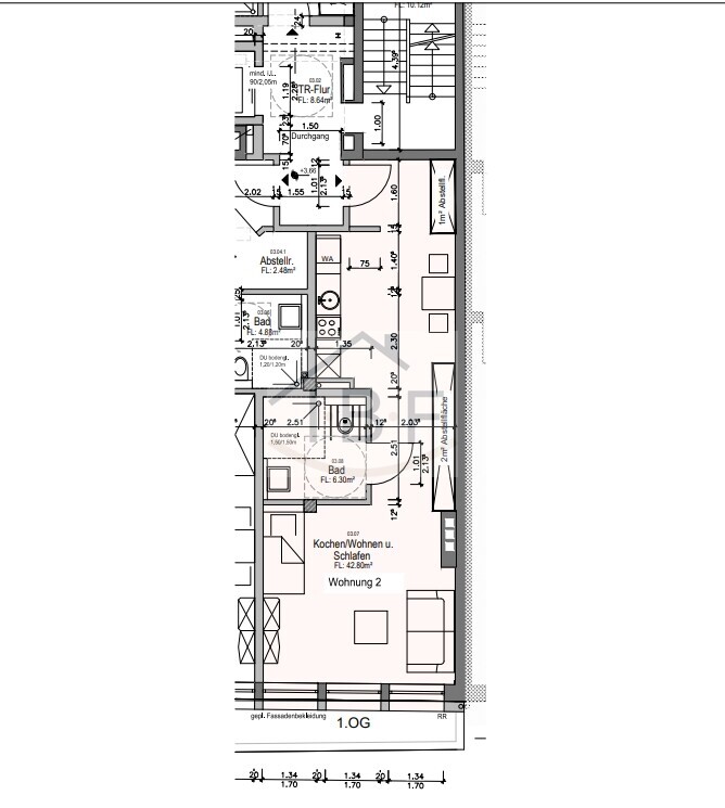
Ihr neues, hochwertig modernisiertes Apartment bietet Ihnen ca. 48 m² Wohnkomfort auf höchstem Niveau.
Das Apartment überzeugt mit einer offenen Raumgestaltung, bei der die Küche fließend in den Wohn- und Schlafbereich übergeht und so ein gemütliches, großzügiges Wohngefühl entsteht.
Dank der Fußbodenheizung mit integrierter Kühlfunktion genießen Sie zu jeder Jahreszeit ein optimales Wohnklima. Die aktive Belüftung mit Wärmerückgewinnung sorgt zusätzlich für frische Luft, Energieeffizienz & Schallschutz.
Besonders erwähnenswert ist die moderne und rollstuhlgerechte Ausstattung, die mit einem bequemen Aufzug den Zugang zur Wohnung problemlos ermöglicht. Hochwertige, dreifachverglaste Fenster mit innenliegenden, elektrisch verstellbaren Jalousien ( Südseite ) bieten optimale Lichtverhältnisse und Privatsphäre.
Erleben Sie zeitgemäßen Komfort in urbaner Lage – diese Wohnung in Siegen vereint modernes Wohnen mit nachhaltiger Bauqualität und wartet darauf, Ihr neues Zuhause zu werden. Lassen Sie sich diese Gelegenheit nicht entgehen!
Es handelt sich bei dem Titelbild um ein Musterbild, die Wohnung ist unmöbliert.
Entdecken Sie ein Wohnkonzept mit modernen Wohnungen zwischen 43 m² und 72 m²!
Ihr neues, hochwertig modernisiertes Apartment bietet Ihnen ca. 48 m² Wohnkomfort auf höchstem Niveau.
Das Apartment überzeugt mit einer offenen Raumgestaltung, bei der die Küche fließend in den Wohn- und Schlafbereich übergeht und so ein gemütliches, großzügiges Wohngefühl entsteht.
Dank der Fußbodenheizung mit integrierter Kühlfunktion genießen Sie zu jeder Jahreszeit ein optimales Wohnklima. Die aktive Belüftung mit Wärmerückgewinnung sorgt zusätzlich für frische Luft, Energieeffizienz & Schallschutz.
Besonders erwähnenswert ist die moderne und rollstuhlgerechte Ausstattung, die mit einem bequemen Aufzug den Zugang zur Wohnung problemlos ermöglicht. Hochwertige, dreifachverglaste Fenster mit innenliegenden, elektrisch verstellbaren Jalousien ( Südseite ) bieten optimale Lichtverhältnisse und Privatsphäre.
Erleben Sie zeitgemäßen Komfort in urbaner Lage – diese Wohnung in Siegen vereint modernes Wohnen mit nachhaltiger Bauqualität und wartet darauf, Ihr neues Zuhause zu werden. Lassen Sie sich diese Gelegenheit nicht entgehen!
Es handelt sich bei dem Titelbild um ein Musterbild, die Wohnung ist unmöbliert.
Fakten
| Objektart | Wohnung |
| Objekttyp | Etagenwohnung |
| Vermarktungsart | Miete |
| Ort | Siegen |
| ImmoNr | 500-642 |
| Wohnfläche | ca. 48 m² |
| Anzahl Zimmer | 1 |
| Kaltmiete | 669,00 € |
| Nebenkosten | 175,00 € |
| Energieeffizienzklasse | A+ |
Eindrücke
Hier können Sie sich einen Eindruck über das Objekt machen. Sollten Sie weitere Fragen haben oder einen Besichtigungstermin wünschen, können Sie uns jederzeit erreichen.
Lage
Die angebotene Wohnung befindet sich im Herzen von Siegen, einer lebendigen und kulturell reichen Stadt in Nordrhein-Westfalen. Diese zentrale Lage ermöglicht direkten Zugang zu zahlreichen Annehmlichkeiten und infrastrukturellen Vorteilen der Innenstadt. In unmittelbarer Nähe zur Wohnung finden Sie ein vielfältiges Angebot an Einkaufsmöglichkeiten, Restaurants und Cafés, die zum Verweilen und Genießen einladen.
Bildungseinrichtungen wie die Universität Siegen sowie verschiedene renommierte Schulen sind bequem innerhalb von maximal 3 Kilometern erreichbar, was diese Lage besonders attraktiv für Studenten und Familien macht. Darüber hinaus bieten die gut ausgebauten Verkehrsnetze der Umgebung hervorragende Verbindungen zu wichtigen Knotenpunkten und erleichtern den Zugang zu anderen Stadtteilen.
Die Nähe zu kulturellen und historischen Sehenswürdigkeiten macht diese Lage perfekt für all jene, die urbanes Leben mit den Vorteilen naturnaher Freizeitmöglichkeiten kombinieren möchten. Erleben Sie die ideale Balance zwischen Stadtleben und Erholung im idyllischen Siegerland.
Bildungseinrichtungen wie die Universität Siegen sowie verschiedene renommierte Schulen sind bequem innerhalb von maximal 3 Kilometern erreichbar, was diese Lage besonders attraktiv für Studenten und Familien macht. Darüber hinaus bieten die gut ausgebauten Verkehrsnetze der Umgebung hervorragende Verbindungen zu wichtigen Knotenpunkten und erleichtern den Zugang zu anderen Stadtteilen.
Die Nähe zu kulturellen und historischen Sehenswürdigkeiten macht diese Lage perfekt für all jene, die urbanes Leben mit den Vorteilen naturnaher Freizeitmöglichkeiten kombinieren möchten. Erleben Sie die ideale Balance zwischen Stadtleben und Erholung im idyllischen Siegerland.
Ausstattung
– Fußbodenheizung mit Kühlfunktion
– Seniorengerecht
– Verbreiterte Türen im Badezimmer (Duschbereich 150x150cm)
– Aktive Belüftung mit Wärmerückgewinnung (Schallisoliert)
– Aufzug
– Dreifachverglasung mit innenliegenden elektrisch, verstellbaren Jalousien (Südseite)
– Seniorengerecht
– Verbreiterte Türen im Badezimmer (Duschbereich 150x150cm)
– Aktive Belüftung mit Wärmerückgewinnung (Schallisoliert)
– Aufzug
– Dreifachverglasung mit innenliegenden elektrisch, verstellbaren Jalousien (Südseite)
Kontakt
Frau Genta Shala
+49 (271) 38680717
info@ibf-siegen.de
Seiten: 1