Komfortables Wohnen in Siegen: Helle, klimatisierte Wohnung mit Aufzug
Komfortables Wohnen in Siegen: Helle, klimatisierte Wohnung mit Aufzug
Willkommen im Centerhome24!
Entdecken Sie ein Wohnkonzept mit modernen Wohnungen zwischen 43 m² und 72 m²!
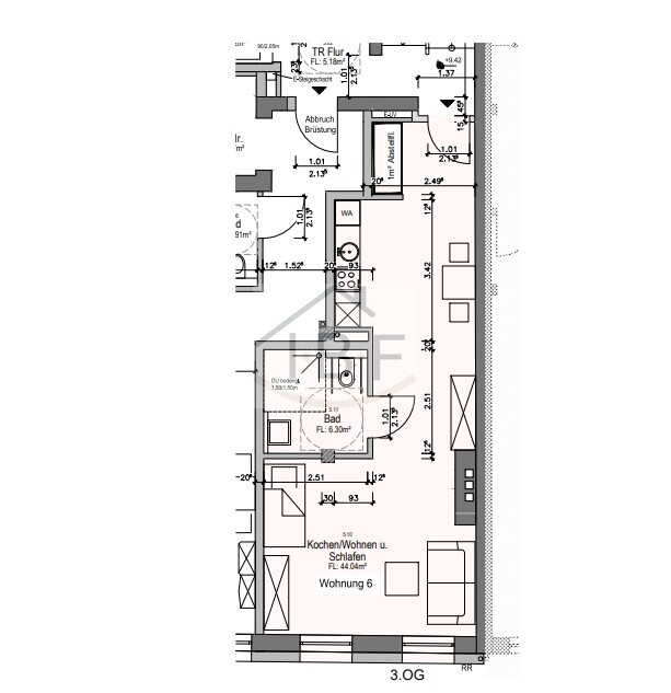
Ihr neues, hochwertig modernisiertes Apartment bietet Ihnen ca. 50 m² Wohnkomfort auf höchstem Niveau.
Das Apartment überzeugt mit einer offenen Raumgestaltung, bei der die Küche fließend in den Wohn- und Schlafbereich übergeht und so ein gemütliches, großzügiges Wohngefühl entsteht.
Dank der Fußbodenheizung mit integrierter Kühlfunktion genießen Sie zu jeder Jahreszeit ein optimales Wohnklima. Die aktive Belüftung mit Wärmerückgewinnung sorgt zusätzlich für frische Luft, Energieeffizienz & Schallschutz.
Besonders erwähnenswert ist die moderne und rollstuhlgerechte Ausstattung, die mit einem bequemen Aufzug den Zugang zur Wohnung problemlos ermöglicht. Hochwertige, dreifachverglaste Fenster mit innenliegenden, elektrisch verstellbaren Jalousien ( Südseite ) bieten optimale Lichtverhältnisse und Privatsphäre.
Erleben Sie zeitgemäßen Komfort in urbaner Lage – diese Wohnung in Siegen vereint modernes Wohnen mit nachhaltiger Bauqualität und wartet darauf, Ihr neues Zuhause zu werden. Lassen Sie sich diese Gelegenheit nicht entgehen!
Es handelt sich bei dem Titelbild um ein Musterbild, die Wohnung ist unmöbliert.
Entdecken Sie ein Wohnkonzept mit modernen Wohnungen zwischen 43 m² und 72 m²!
Ihr neues, hochwertig modernisiertes Apartment bietet Ihnen ca. 50 m² Wohnkomfort auf höchstem Niveau.
Das Apartment überzeugt mit einer offenen Raumgestaltung, bei der die Küche fließend in den Wohn- und Schlafbereich übergeht und so ein gemütliches, großzügiges Wohngefühl entsteht.
Dank der Fußbodenheizung mit integrierter Kühlfunktion genießen Sie zu jeder Jahreszeit ein optimales Wohnklima. Die aktive Belüftung mit Wärmerückgewinnung sorgt zusätzlich für frische Luft, Energieeffizienz & Schallschutz.
Besonders erwähnenswert ist die moderne und rollstuhlgerechte Ausstattung, die mit einem bequemen Aufzug den Zugang zur Wohnung problemlos ermöglicht. Hochwertige, dreifachverglaste Fenster mit innenliegenden, elektrisch verstellbaren Jalousien ( Südseite ) bieten optimale Lichtverhältnisse und Privatsphäre.
Erleben Sie zeitgemäßen Komfort in urbaner Lage – diese Wohnung in Siegen vereint modernes Wohnen mit nachhaltiger Bauqualität und wartet darauf, Ihr neues Zuhause zu werden. Lassen Sie sich diese Gelegenheit nicht entgehen!
Es handelt sich bei dem Titelbild um ein Musterbild, die Wohnung ist unmöbliert.
Fakten
| Objektart | Wohnung |
| Objekttyp | Etagenwohnung |
| Vermarktungsart | Miete |
| Ort | Siegen |
| ImmoNr | 500-646 |
| Wohnfläche | ca. 50 m² |
| Anzahl Zimmer | 1 |
| Kaltmiete | 697,00 € |
| Nebenkosten | 185,00 € |
| Energieeffizienzklasse | A+ |
Eindrücke
Hier können Sie sich einen Eindruck über das Objekt machen. Sollten Sie weitere Fragen haben oder einen Besichtigungstermin wünschen, können Sie uns jederzeit erreichen.
Lage
Die angebotene Wohnung befindet sich in zentraler Lage im Herzen von Siegen, einer lebendigen Stadt in Nordrhein-Westfalen. Siegen besticht nicht nur durch seine kulturelle Vielfalt und sein reichhaltiges Freizeitangebot, sondern ist auch bekannt für seine ausgezeichnete Infrastruktur. Die Universität Siegen sowie diverse Schulen sind in einem Umkreis von maximal drei Kilometern schnell und bequem erreichbar, was diesen Standort besonders attraktiv für Studierende und Familien macht. Die unmittelbare Umgebung bietet zudem eine Vielzahl von Einkaufsmöglichkeiten, gastronomischen Einrichtungen und Parks, die zu ausgiebigen Spaziergängen einladen. Dank der zentralen Lage ist die Wohnung hervorragend an den öffentlichen Nahverkehr angebunden, wodurch alle wichtigen Ziele in der Region unkompliziert erreicht werden können.
Ausstattung
– Fußbodenheizung mit Kühlfunktion
– Seniorengerecht
– Verbreiterte Türen im Badezimmer (Duschbereich 150x150cm)
– Aktive Belüftung mit Wärmerückgewinnung (Schallisoliert)
– Aufzug
– Dreifachverglasung mit innenliegenden, elektrisch verstellbaren Jalousien (Südseite)
– Seniorengerecht
– Verbreiterte Türen im Badezimmer (Duschbereich 150x150cm)
– Aktive Belüftung mit Wärmerückgewinnung (Schallisoliert)
– Aufzug
– Dreifachverglasung mit innenliegenden, elektrisch verstellbaren Jalousien (Südseite)
Kontakt
Frau Genta Shala
+49 (271) 38680717
info@ibf-siegen.de
Seiten: 1