Zentrale, 1-Zimmer-Wohnung mit Aufzug in Siegens Innenstadt
Zentrale, 1-Zimmer-Wohnung mit Aufzug in Siegens Innenstadt
Willkommen im Centerhome24!
Entdecken Sie ein Wohnkonzept mit modernen Wohnungen zwischen 43 m² und 72 m²!
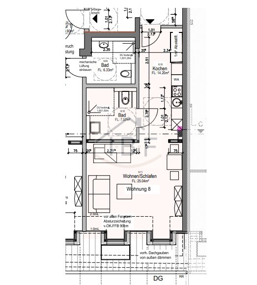
Ihre neues, hochwertig modernisiertes Apartment bietet Ihnen ca. 47 m² Wohnkomfort auf höchstem Niveau.
Das Apartment überzeugt mit einer offenen Raumgestaltung, bei der die Küche fließend in den Wohn- und Schlafbereich übergeht und so ein gemütliches, großzügiges Wohngefühl entsteht.
Dank der Fußbodenheizung mit integrierter Kühlfunktion genießen Sie zu jeder Jahreszeit ein optimales Wohnklima. Die aktive Belüftung mit Wärmerückgewinnung sorgt zusätzlich für frische Luft, Energieeffizienz & Schallschutz.
Besonders erwähnenswert ist die moderne und rollstuhlgerechte Ausstattung, die mit einem bequemen Aufzug den Zugang zur Wohnung problemlos ermöglicht. Hochwertige, dreifachverglaste Fenster mit innenliegenden, elektrisch verstellbaren Jalousien ( Südseite ) bieten optimale Lichtverhältnisse und Privatsphäre.
Erleben Sie zeitgemäßen Komfort in urbaner Lage – diese Wohnung in Siegen vereint modernes Wohnen mit nachhaltiger Bauqualität und wartet darauf, Ihr neues Zuhause zu werden. Lassen Sie sich diese Gelegenheit nicht entgehen!
Es handelt sich bei dem Titelbild um ein Musterbild, die Wohnung ist unmöbliert.
Entdecken Sie ein Wohnkonzept mit modernen Wohnungen zwischen 43 m² und 72 m²!
Ihre neues, hochwertig modernisiertes Apartment bietet Ihnen ca. 47 m² Wohnkomfort auf höchstem Niveau.
Das Apartment überzeugt mit einer offenen Raumgestaltung, bei der die Küche fließend in den Wohn- und Schlafbereich übergeht und so ein gemütliches, großzügiges Wohngefühl entsteht.
Dank der Fußbodenheizung mit integrierter Kühlfunktion genießen Sie zu jeder Jahreszeit ein optimales Wohnklima. Die aktive Belüftung mit Wärmerückgewinnung sorgt zusätzlich für frische Luft, Energieeffizienz & Schallschutz.
Besonders erwähnenswert ist die moderne und rollstuhlgerechte Ausstattung, die mit einem bequemen Aufzug den Zugang zur Wohnung problemlos ermöglicht. Hochwertige, dreifachverglaste Fenster mit innenliegenden, elektrisch verstellbaren Jalousien ( Südseite ) bieten optimale Lichtverhältnisse und Privatsphäre.
Erleben Sie zeitgemäßen Komfort in urbaner Lage – diese Wohnung in Siegen vereint modernes Wohnen mit nachhaltiger Bauqualität und wartet darauf, Ihr neues Zuhause zu werden. Lassen Sie sich diese Gelegenheit nicht entgehen!
Es handelt sich bei dem Titelbild um ein Musterbild, die Wohnung ist unmöbliert.
Fakten
| Objektart | Wohnung |
| Objekttyp | Etagenwohnung |
| Vermarktungsart | Miete |
| Ort | Siegen |
| ImmoNr | 500-647 |
| Wohnfläche | ca. 47 m² |
| Anzahl Zimmer | 1 |
| Kaltmiete | 656,00 € |
| Nebenkosten | 170,00 € |
| Energieeffizienzklasse | A+ |
Eindrücke
Hier können Sie sich einen Eindruck über das Objekt machen. Sollten Sie weitere Fragen haben oder einen Besichtigungstermin wünschen, können Sie uns jederzeit erreichen.
Lage
Die hier angebotene Wohnung befindet sich im Herzen von Siegen, einer charmanten Stadt in Nordrhein-Westfalen, die für ihre malerische Landschaft und ihren kulturellen Reichtum bekannt ist. Diese zentrale Lage bietet den zukünftigen Bewohnern eine hervorragende Anbindung an alle städtischen Annehmlichkeiten. In unmittelbarer Nähe finden Sie eine Vielzahl von Einkaufs- und Freizeitmöglichkeiten, die dazu einladen, das pulsierende Leben der Stadt zu genießen. Die exzellente Infrastruktur ermöglicht zudem eine schnelle Erreichbarkeit der Universität Siegen sowie zahlreicher Bildungseinrichtungen, die in einem Umkreis von maximal 3 Kilometern gelegen sind. Diese strategische Lage ist ideal für Studierende, Berufspendler und all jene, die das geschäftige Stadtleben mit kurzen Wegen schätzen. Die Anbindung an öffentliche Verkehrsmittel ist hervorragend, und die gute Erreichbarkeit wichtiger Verkehrswege macht diese Adresse zu einem optimalen Ausgangspunkt für Ausflüge in die Umgebung.
Ausstattung
– Fußbodenheizung mit Kühlfunktion
– Seniorengerecht
– Verbreiterte Türen im Badezimmer (150x150cm Duschbereich)
– Aktive Belüftung mit Wärmerückgewinnung (Schallisoliert)
– Aufzug
– Dreifachverglasung mit innenliegenden, elektrisch verstellbaren Jalousien (Südseite)
– Seniorengerecht
– Verbreiterte Türen im Badezimmer (150x150cm Duschbereich)
– Aktive Belüftung mit Wärmerückgewinnung (Schallisoliert)
– Aufzug
– Dreifachverglasung mit innenliegenden, elektrisch verstellbaren Jalousien (Südseite)
Kontakt
Frau Genta Shala
+49 (271) 38680717
info@ibf-siegen.de
Seiten: 1